Hilldrop Residence
London, Islington, UK
Residential

Hilldrop Residence is a delightful Victorian villa nestled in the London borough of Islington. This four-storey semi-detached gem boasts a unique shallow valley roof and sits gracefully on the western side of Hilldrop Road. Though not officially listed, it harmoniously complements its neighbouring semi-detached house within the Hillmarton Conservation Area.
Our proposed development journey involves a range of stages, from design and documentation to coordination and construction management, all aimed at expanding this residential villa. The expansion vision includes crafting five self-contained flats, adding a roof extension, erecting a single-storey rear and side extension at the lower ground floor level, establishing a terrace/walkway at the upper ground floor level with access stairs, and implementing associated modifications.
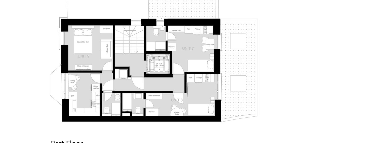
A vital aspect of our internal design layout was ensuring its adaptability to serve dual purposes. Each unit must seamlessly function as either a standalone flat or a self-contained studio, in compliance with the legal minimum room standards set out in the Licensing of Houses in Multiple Occupation (Mandatory Conditions of Licences) (England) Regulations 2018.
Through meticulous design and planning, we successfully added an extra floor and incorporated rear and side extensions to the existing structure. These enhancements transformed the villa into five self-contained flats, featuring a mix of two-bedroom family units, a three-bedroom family unit, and a single-bedroom unit. Furthermore, the layout allows for future conversion of the flats into 14 self-contained studios. Each of these 14 studio units has been thoughtfully crafted to include a kitchen, living room, bathroom, and study area, catering to young professionals seeking affordable accommodation in central London, while immersing themselves in the vibrant energy and creative atmosphere of city living.


















